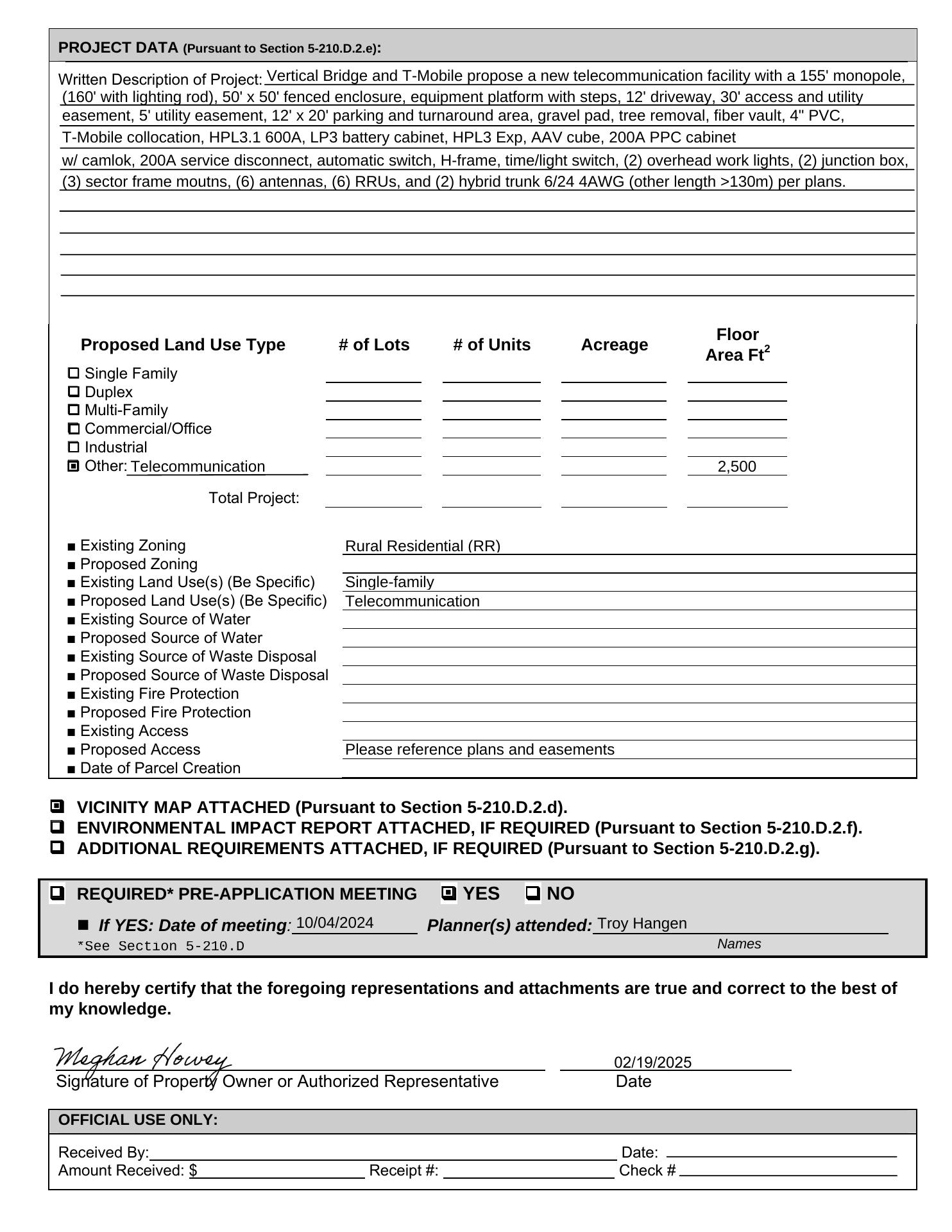
Eagle Ranch Association

1143 Capitol St, Eagle
(970) 328-2170

Menu

Photos

+30 photos
+29 photos
Add a photo

Recent Reviews

We came here on Easter, during our 10+hr drive from Utah to CO. It wasn't too far off the highway, offered decent parking, the food and service was good. Thank you Luigi's.
Stopped by for dinner on a Saturday around 5pm. We we're greated and sat instantly. Entire staff was prompt and courteous. My calzone was good and just how it was ordered. On the negative side for me personally was the seating. I'm just not a fan of long bench seats. We were doing great until the group was seated next to us. They were loud enough that our conversation completely stopped because we could hear each other. It's not that they were overly obnoxious either....
I was excited to try this place, but it was apparent early on that we weren't going to have a great experience. We waited at the door to be acknowledged for 10 minutes. The appetizer Italian nachos were great! Crispy and delicious. Unfortunately, that's the only good food we received. My pasta was under seasoned and was helped only by adding salt to my dish. My husband's food was horrible... I'm pretty sure the tomatoes were burnt and it's what caused...

More Reviews